AREX天白区植田一本松北Ⅳ

【11/29(土)・30(日)】建物完成披露 現地見学会開催!
地下鉄鶴舞線「塩釜口」駅まで自転車約8分。緑豊かな公園が周辺に多く、生活利便施設も揃った暮らしやすい住環境です。AREXの建築家がデザインしたコンセプトハウス、先行にて1邸完成です。
2026年3月完成予定!(4・5・6区画)
数々の受賞歴を誇るAREXの建築家が細部までこだわってデザインしたコンセプトハウス「広がりのある家」先行にて完成。
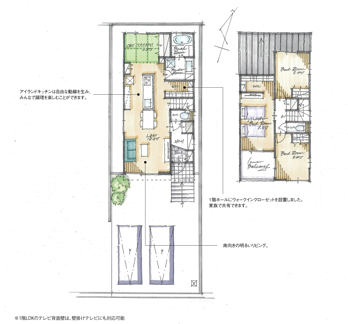
LDKにつながる和室は置き畳になっており、取り外すことで広がりのあるリビングを演出することが可能。またLDKと和室には、南からの陽の光が注ぐ設計になっているため、明るく開放的な暮らしを楽しめます。
ぜひ現地にてこの空間をご体感ください。
区画図
Land plan間取り/内観
Floor plan- PLAN2
- PLAN4
- PLAN5
- PLAN6
広がりのある家

販売価格
4,880万円(税込)
間取り
4LDK+WIC+土間収納+パントリー
敷地面積
147.10㎡(44.49坪)
延床面積
102.05㎡(30.87坪)
1階床面積
55.48㎡(16.78坪)
2階床面積
46.57㎡(14.08坪)
住宅性能評価高水準の等級を取得





備考
長期優良住宅(新築)
※外構費別
参考プラン

販売価格
5,180万円(税込)
間取り
4LDK+WIC×2+土間収納+パントリー
敷地面積
147.11㎡(44.50坪)
延床面積
101.45㎡(30.68坪)
1階床面積
57.97㎡(17.53坪)
2階床面積
43.48㎡(13.15坪)
備考
※建物・外構プランは、参考プランであり、建物配置・建物形状等の変更がある場合がございます。
※外構費別
※一部オプションが含まれる場合があります。
参考プラン

販売価格
5,180万円(税込)
間取り
4LDK+ファミリークローゼット+土間収納+パントリー+ランドリー
敷地面積
147.12㎡(44.50坪)
延床面積
103.52㎡(31.31坪)
1階床面積
52.18㎡(15.78坪)
2階床面積
51.34㎡(15.53坪)
備考
※建物・外構プランは、参考プランであり、建物配置・建物形状等の変更がある場合がございます。
※外構費別
※一部オプションが含まれる場合があります。
参考プラン

販売価格
5,180万円(税込)
間取り
4LDK+WIC+土間収納+パントリー
敷地面積
147.11㎡(44.50坪)
延床面積
103.52㎡(31.31坪)
1階床面積
58.60㎡(17.72坪)
2階床面積
44.72㎡(13.52坪)
備考
※建物・外構プランは、参考プランであり、建物配置・建物形状等の変更がある場合がございます。
※外構費別
※一部オプションが含まれる場合があります。
設備/仕様
Equipment
LOW-E複層ガラス
(アルゴンガス入り)
断熱性の高いアルミ樹脂複合サッシ+LOW-E複層ガラス(アルゴンガス入り)

人工和紙を原料とした畳 カビや日焼けを軽減し、撥水性や耐久性にも優れています

内装のクロスでアクセントをつけたおしゃれなLDK・洋室

作業性に優れ、広々使うことのできる快適なシステムキッチン

引き出し式で食器を一度に洗える食器洗い乾燥機

センサーが感知して楽々操作。吐水も止水も手をかざすだけ。

除菌イオン機能、浴室暖房乾燥機付きのバスルーム

大容量の収納も完備した広々とした洗面化粧台

洗濯物干しに便利な器具を備えています ※プランによってはランドリーパイプとなります

来訪者の呼び出しをモニター画面で応対できるTVドアホン

LDK全体の空調として使用できる20帖用のエアコンをリビングに設置 ※メーカーが異なる場合があります

暖房効率が良くランニングコストも抑えることのできる床暖房

排熱を利用して効率よくお湯をつくる省エネ設計のガス給湯器

専任の設計士が建物に合わせて一棟一棟設計するエクステリア

他社にないアーレックスオリジナルの設備が多数ございます
地図/周辺環境
Access
自転車約8分
徒歩約8~9分
徒歩約9~10分
徒歩約17~18分
徒歩約33分
徒歩約10分
徒歩約10~11分
徒歩約14~15分
徒歩約14分
| 交通 | 地下鉄鶴舞線「塩釜口」駅 約1820~1870m(自転車約8分) 名古屋市バス「焼山橋」停(2番のりば) 約190~270m(徒歩約3~4分) 名古屋市バス「焼山橋」停(1番のりば) 約310~330m(徒歩約4~5分) |
|---|---|
| 教育 | いぶき保育園 約410~480m(徒歩約6分) 栄光八事幼稚園 約630~700m(徒歩約8~9分) マミーベア保育園うえだきた 約660~720m(徒歩約9分) 一本松保育園 約680~750m(徒歩約9~10分) 大坪小学校 約1360~1410m(徒歩約17~18分) 御幸山中学校 約2580~2630m(徒歩約33分) |
| ショッピング | フィールRISE やき山店 約510~520m(徒歩約7分) イオンスタイル 高針原 約730~750m(徒歩約10分) ピアゴ 植田店 約750~810m(徒歩約10~11分) マックスバリュエクスプレス 天白植田店 約1110~1180m(徒歩約14~15分) |
| 病院 | 植田山クリニック 約150~220m(徒歩約2~3分) MAクリニック 約300~320m(徒歩約4分) |
| 公園 | 姥ケ崎南公園 約140~280m(徒歩約2~4分) 蛇崩第一公園 約240~330m(徒歩約3~5分) 牧野ヶ池緑地 約1100~1110m(徒歩約14分) |
| その他 | セブンイレブン 名古屋植田山2丁目店 約300~370m(徒歩約4~5分) ファミリーマート 天白焼山店 約310~320m(徒歩約4分) |
物件概要
outline所在地
〒468-0001 名古屋市天白区植田山4丁目604番の一部
交通
地下鉄鶴舞線「塩釜口」駅 自転車約8分
総区画数
6区画
今回戸建分譲区画数
4区画
戸建分譲価格
4,880万円(税込)・5,180万円(税込) ※外構費別
戸建分譲区画面積
147.10㎡(44.49坪)~147.12㎡(44.50坪)
延床面積
101.45㎡(30.68坪)~103.61㎡(31.34坪)
都市計画
市街化区域
用途地域
第二種中高層住居専用地域
地域・地区
準防火地域、20m高度地区、緑化地域、宅地造成工事規制区域、下水道処理区域
地目
畑
建ぺい率
60%
容積率
150%・200%
土地権利
所有権
建築確認番号
第R06確認建築愛建住セ25231号他
建物構造
木造軸組工法2階建
接面道路
南側公道約6.5m、北側公道約9.9m
設備
電気、都市ガス、公共上下水道
建物完成
2025年8月(2区画)、2026年3月予定(4・5・6区画)
引渡可能時期
即引渡可(2区画)、2026年3月予定(4・5・6区画)
取引条件有効期限
2026年3月末日
売主
アーレックス(株) 愛知(4)20443号


































LDKにつながる和室は置き畳になっており、取り外すことで広がりのあるリビングを演出することが可能。またLDKと和室には、南からの陽の光が注ぐ設計になっているため、明るく開放的な暮らしを楽しめます。