AREX北区池花町

【5/30(土)・31(日)】建物完成披露 現地見学会開催!
東海交通事業城北線「味美」駅まで徒歩約17分。保育園や小・中学校、緑豊かな公園が近く、生活利便施設も近隣に揃った子育て家族に嬉しい住環境です。AREXの建築家がデザインしたコンセプトハウス、最終1邸です。
数々の受賞歴を誇るAREXの建築家が細部までこだわってデザインしたコンセプトハウス「タタミコーナーのある家」最終1邸。
1階に設けた小上がりのタタミコーナーは、子どもの遊び場や読書スペースなど、多目的に活用することが可能。リビングのもう一つの居場所として、暮らしに豊かな彩りをもたらします。
ぜひ現地にてこの空間をご体感ください。
区画図
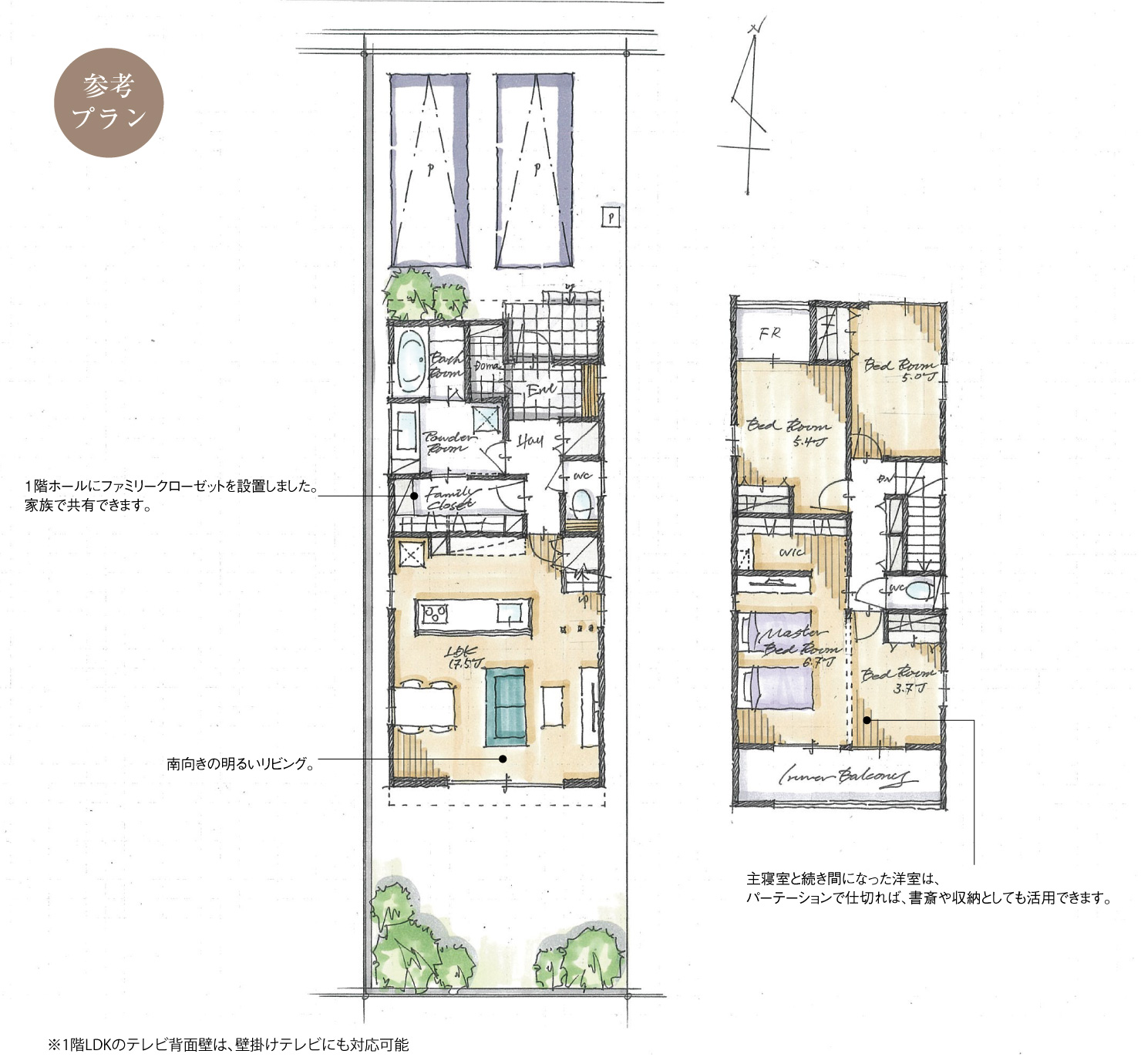
Land plan間取り/内観
Floor plan- PLAN2
設備/仕様
Equipment
LOW-E複層ガラス
(アルゴンガス入り)
断熱性の高いアルミ樹脂複合サッシ+LOW-E複層ガラス(アルゴンガス入り)

人工和紙を原料とした畳 カビや日焼けを軽減し、撥水性や耐久性にも優れています

内装のクロスでアクセントをつけたおしゃれなLDK・洋室

作業性に優れ、広々使うことのできる快適なシステムキッチン

引き出し式で食器を一度に洗える食器洗い乾燥機

センサーが感知して楽々操作。吐水も止水も手をかざすだけ。

除菌イオン機能、浴室暖房乾燥機付きのバスルーム

大容量の収納も完備した広々とした洗面化粧台

洗濯物干しに便利な器具を備えています ※プランによってはランドリーパイプとなります

来訪者の呼び出しをモニター画面で応対できるTVドアホン

LDK全体の空調として使用できる20帖用のエアコンをリビングに設置 ※メーカーが異なる場合があります

暖房効率が良くランニングコストも抑えることのできる床暖房

排熱を利用して効率よくお湯をつくる省エネ設計のガス給湯器

専任の設計士が建物に合わせて一棟一棟設計するエクステリア

他社にないアーレックスオリジナルの設備が多数ございます
地図/周辺環境
Access
| 交通 | 東海交通事業城北線「味美」駅 約1300~1310m(徒歩約17分) 名鉄小牧線「味美」駅 約1870~1880m(自転車約8分) 名古屋市バス「池花町」停(1番のりば) 約470~480m(徒歩約6分) |
|---|---|
| 教育 | 如意保育園 約370~380m(徒歩約5分) くすのき北保育園 約650~660m(徒歩約9分) ほほえみ保育園 約750m(徒歩約10分) 新生さくら保育園 約800m(徒歩約10分) 楠小学校 約130~140m(徒歩約2分) 楠中学校 約510m(徒歩約7分) |
| ショッピング | ザ・ビッグエクスプレス楠店 約610~620m(徒歩約8分) 生鮮館やまひこ 如意店 約660m(徒歩約9分) タチヤ 楠店 約660m(徒歩約9分) ピアゴ味鋺店 約850~860m(徒歩約11分) エアポートウォーク名古屋 約2610m(車約6分) |
| 病院 | 榊原内科診療所 約450m(徒歩約6分) いしぐろクリニック 約790m(徒歩約10分) |
| 公園 | 楠公園 約180~190m(徒歩約3分) 富士塚公園 約410~420m(徒歩約6分) |
| その他 | ミニストップ 名古屋若鶴町店 約290~300m(徒歩約4分) |
物件概要
outline所在地
〒462-0005 名古屋市北区池花町281番の一部
交通
東海交通事業城北線「味美」駅 徒歩約17分
総区画数
2区画
今回戸建分譲区画数
1区画
戸建分譲価格
4,280万円(税込)
戸建分譲区画面積
141.54㎡(42.81坪)
延床面積
104.76㎡(31.68坪)
都市計画
市街化区域
用途地域
第二種中高層住居専用地域
地域・地区
準防火地域、20m高度地区、緑化地域、下水道処理区域
地目
田
建ぺい率
60%
容積率
200%
土地権利
所有権
建築確認番号
第R07確認建築愛建住セ22467号
建物構造
木造軸組工法2階建
接面道路
北側公道約6.5m
設備
電気、都市ガス、公共上下水道
建物完成
2026年4月
引渡可能時期
即引渡可
取引条件有効期限
2026年5月末日
売主
アーレックス(株) 愛知(5)20443号







































1階に設けた小上がりのタタミコーナーは、子どもの遊び場や読書スペースなど、多目的に活用することが可能。リビングのもう一つの居場所として、暮らしに豊かな彩りをもたらします。